位置:首页 > 产品中心
JKT型斗式提升机
型号:JKT型
品牌:精科
产地:广州番禺
设备类型:斗式提升机

产品介绍

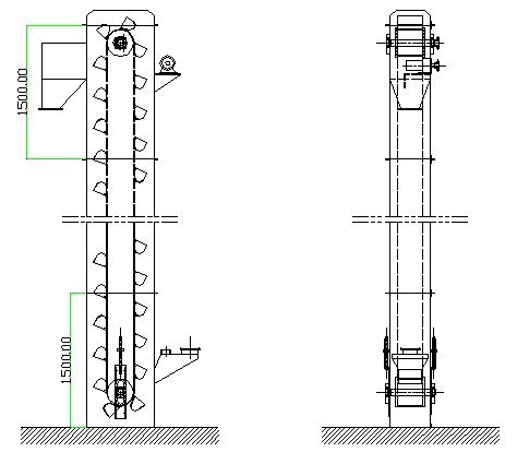
斗式提升机,由运动部分(料斗与牵引胶带)、带有传动滚筒的上部区段、带有拉紧滚筒的下部区段、中间机壳、驱动装置、逆止制动器等组成,适用于向上输送粉状、粒状小块状的无磨琢性或半磨琢性散状物料,如煤、沙、焦末、水泥、水矿石等。
  本机的特点为快速离心式卸料:并采用橡胶输送带为牵引构件故不适于输送大块磨琢性及掏取阻力大的物料,广泛应用于冶金、化工、建材、矿山、粮油、食品、饲料、塑料、医药等行业。

技术参数:

安装尺寸:

包装样袋:

广州市精科包装设备有限公司
获取底价
提交后,商家将派代表为您专人服务
 
相关产品:
| 首页 | CAS NO | 联系我们 | 会员服务 | 推广服务 | 友情链接 |
版权所有 CopyRight © 2008-2026 粤ICP备08119708号