位置:首页 > 产品中心
PGL-80B喷雾干燥制粒机
型号:PGL-80B
产地:常州
制粒方法:一步法

产品介绍

应用范围

制药工业:片剂、冲剂、胶囊剂颗粒;低糖、无糖的中成药颗粒;

食品:可可、咖啡、奶粉、颗粒果汁、调味品等;

其它行业:农药、饲料、化肥、颜料、染料等。

产品特点

集喷雾干燥/流化制粒于一体,实现液态物料一步法制粒;采用喷雾工艺,特别适用微辅料,热敏性物料,功效比FL沸腾制粒机高1—2倍;一些产品终水份可达0.1%,配备返粉装置,成粒率≥85%,可制0.2-2mm颗粒;改进设计的内混式多流体雾化器,可处理一些比重达 1.3g/cm3的浸膏。目前该系列产品已做到PGL-150B,每批可处理500kg。

技术参数

项目单位/机型PGL-80B
流浸膏较小kg/h40
较大kg/h80
沸腾能力较小kg/批100
较大kg/批250
液体比重kg/L≤1.30
原料容器量L980
容器直径mm1400
引风机功率kw30
辅风机功率kw2.20
蒸汽耗量kg/h366
压力Mpa0.1-0.4
电热型功率kw60
压缩空气耗量m3/min1.3
压力Mpa0.1-0.4
作业温度室温-130℃自动调节
产品水份%≤0.5%
物料收得率%≥99%
设备噪音dB≤75
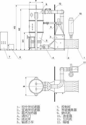
主机尺寸Φmm1400
H1mm1620
H2mm4120
H3mm4770
Bmm1820
重量kg2500

选型例:要求每批次处理流浸膏量I=120kg(含固量为30%)、种子量II=60kg,可由I、II得出理论成品量M=mI+mII=120kg*30%+60kg=96kg,工作时间T=120kg/30kg/h=4h,技术参数栏中可查出沸腾量为标准载荷范围,故以每班完成两个批次,选用PGL-30B型较为适宜。

常州一步干燥设备有限公司
获取底价
提交后,商家将派代表为您专人服务
 
相关产品:
| 首页 | CAS NO | 联系我们 | 会员服务 | 推广服务 | 友情链接 |
版权所有 CopyRight © 2008-2026 粤ICP备08119708号